Отдел Продаж
(ООО «СЗ «Псковоблстрой»)
8 (8112) 60-60-70, +7-921-115-60-70, 8 (8112) 60-22-60, +7-931-905-21-46
sale@novostroypskov.ru

6 189 760 руб.
ID-056
Забронировано
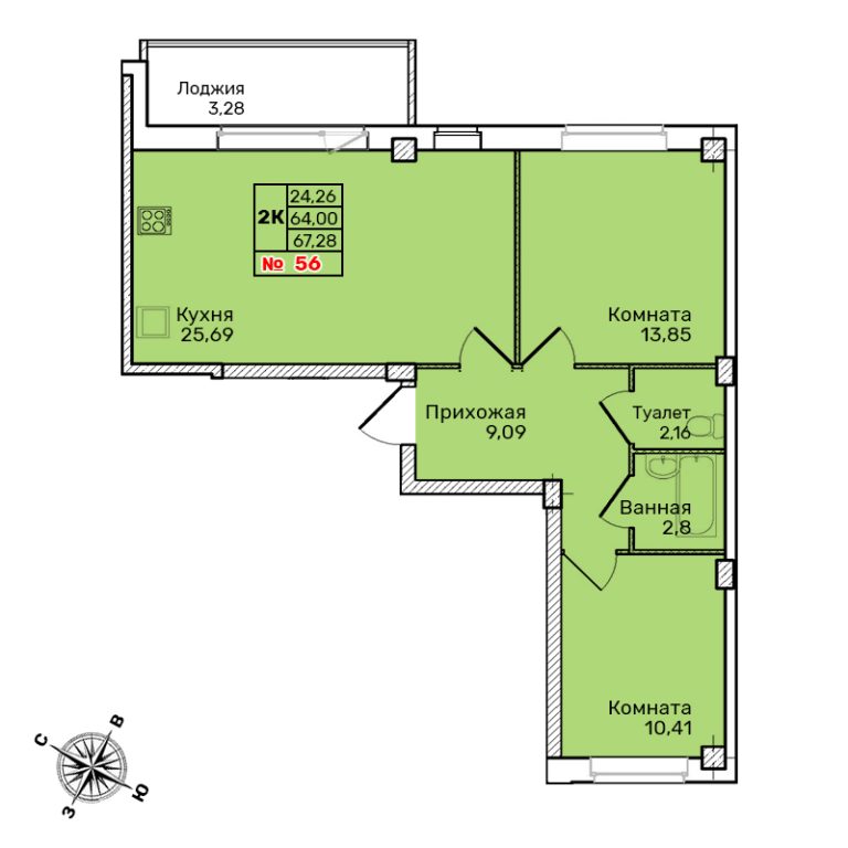
Комнат: 2-комнатная
Этаж: 4-ый этаж
Продаваемая площадь (с лоджией): 67,28 м²
Местоположение: 2-ой подъезд
Жилая площадь: 24,26 м²
Номер квартиры: 56
Площадь кухни: 25,69 м²
Отделка: базовая
Площадь санузла: 2,16 м²
Тип санузла: раздельный
Площадь ванной: 2,80 м²
Извините. Данная квартира уже недоступна.
Поделиться ссылкой на объявление:
Этаж: 4
Идеальный баланс для вашей семьи!
Простор для жизни, творчества и роста. Двухкомнатная квартира в ЖК «Новый» создана для молодых семей и тех, кто планирует пополнение. Вы сможете обустроить детскую комнату и спальню для родителей, а просторная кухня-гостиная станет местом для семейных ужинов и теплых встреч.
Это не просто квартира, это — ваш настоящий дом, где каждый найдет свой уголок.
Квартира на этаже:

Квартира на генплане:

Другие квартиры на этаже:
Расчёт ипотечного платежа
Стоимость квартиры: 6 189 760 ₽
Результаты расчёта:
Первоначальный взнос:
0 ₽
Сумма кредита:
0 ₽
Ежемесячный платёж:
0 ₽
Данный расчет предварительный и за более точной информацией необходимо обратиться в банк
Наши банки-партнеры
Отдел Продаж
(ООО «СЗ «Псковоблстрой»)
8 (8112) 60-60-70, +7-921-115-60-70, 8 (8112) 60-22-60, +7-931-905-21-46
sale@novostroypskov.ru





