Отдел Продаж
(ООО «СЗ «Псковоблстрой»)
8 (8112) 60-60-70, +7-921-115-60-70, 8 (8112) 60-22-60, +7-931-905-21-46
sale@novostroypskov.ru

6 163 080 руб.
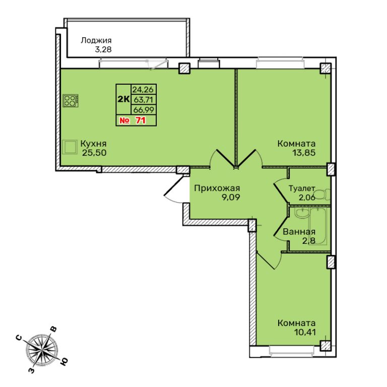
ID-071
Продано
Комнат: 2-комнатная
Этаж: 7-ой этаж
Продаваемая площадь (с лоджией): 66,99 м²
Местоположение: 2-ой подъезд
Жилая площадь: 24,26 м²
Номер квартиры: 71
Площадь кухни: 25,50 м²
Отделка: базовая
Площадь санузла: 2,06 м²
Тип санузла: раздельный
Площадь ванной: 2,80 м²
Извините. Данная квартира уже недоступна.
Поделиться ссылкой на объявление:
Этаж: 7
Другие квартиры на этаже:
Расчёт ипотечного платежа
Стоимость квартиры: 6 163 080 ₽
Результаты расчёта:
Первоначальный взнос:
0 ₽
Сумма кредита:
0 ₽
Ежемесячный платёж:
0 ₽
Данный расчет предварительный и за более точной информацией необходимо обратиться в банк
Наши банки-партнеры
Отдел Продаж
(ООО «СЗ «Псковоблстрой»)
8 (8112) 60-60-70, +7-921-115-60-70, 8 (8112) 60-22-60, +7-931-905-21-46
sale@novostroypskov.ru





