Отдел Продаж
(ООО «СЗ «Псковоблстрой»)
8 (8112) 60-60-70, +7-921-115-60-70, 8 (8112) 60-22-60, +7-931-905-21-46
sale@novostroypskov.ru

3 863 650 руб.
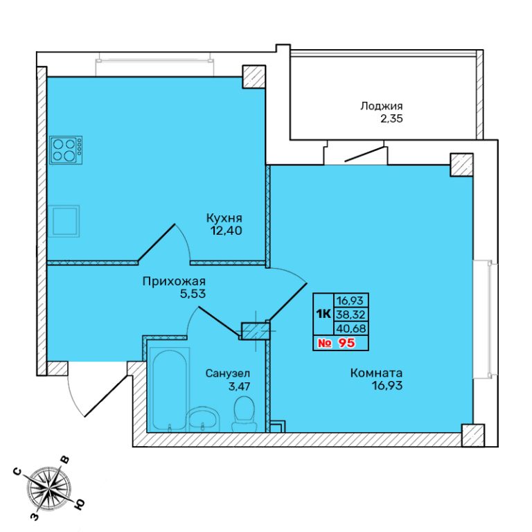
ID-095
Продажа
Комнат: 1-комнатая
Этаж: 2-ой этаж
Продаваемая площадь (с лоджией): 40,68 м²
Местоположение: 3-ий подъезд
Жилая площадь: 16,93 м²
Номер квартиры: 95
Площадь кухни: 12,40 м²
Отделка: базовая
Площадь санузла: 3,47 м²
Тип санузла: совмещённый
Поделиться ссылкой на объявление:
Этаж: 2
Пространство для жизни и вдохновения!
Однокомнатная квартира — это гармония комфорта и практичности. Здесь вы сможете обустроить отдельную спальню для полноценного отдыха и просторную гостиную-кухню, которая станет центром притяжения. Большие окна наполнят пространство светом, а тишина и покой жилого комплекса помогут расслабиться после активного дня.
Отличный выбор для пары или того, кто любит личное пространство.
Квартира на этаже:

Квартира на генплане:

Другие квартиры на этаже:
Расчёт ипотечного платежа
Стоимость квартиры: 3 863 650 ₽
Результаты расчёта:
Первоначальный взнос:
0 ₽
Сумма кредита:
0 ₽
Ежемесячный платёж:
0 ₽
Данный расчет предварительный и за более точной информацией необходимо обратиться в банк
Наши банки-партнеры
Отдел Продаж
(ООО «СЗ «Псковоблстрой»)
8 (8112) 60-60-70, +7-921-115-60-70, 8 (8112) 60-22-60, +7-931-905-21-46
sale@novostroypskov.ru






