Отдел Продаж
(ООО «СЗ «Псковоблстрой»)
8 (8112) 60-60-70, +7-921-115-60-70, 8 (8112) 60-22-60, +7-931-905-21-46
sale@novostroypskov.ru

2 871 000 руб.
ID-002
Продажа
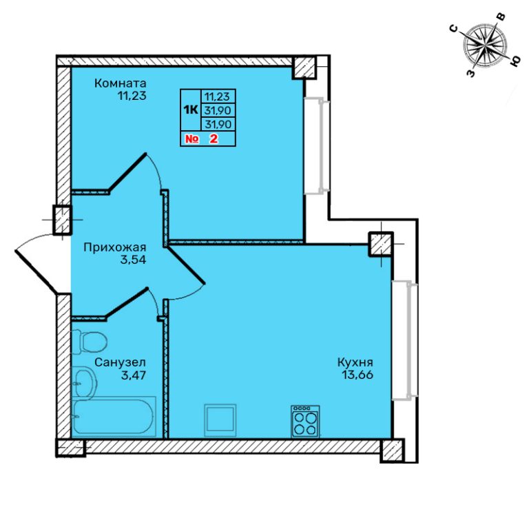
Комнат: 1-комнатая
Этаж: 2-ой этаж
Продаваемая площадь (с лоджией): 31,90 м²
Местоположение: 1-ый подъезд
Жилая площадь: 11,23 м²
Номер квартиры: 2
Площадь кухни: 13,66 м²
Отделка: базовая
Площадь санузла: 3,47 м²
Тип санузла: совмещённый
Поделиться ссылкой на объявление:
Этаж: 2
Пространство для жизни и вдохновения!
Однокомнатная квартира — это гармония комфорта и практичности. Здесь вы сможете обустроить отдельную спальню для полноценного отдыха и просторную гостиную-кухню, которая станет центром притяжения. Большие окна наполнят пространство светом, а тишина и покой жилого комплекса помогут расслабиться после активного дня.
Отличный выбор для пары или того, кто любит личное пространство.
Квартира на этаже:

Квартира на генплане:

Другие квартиры на этаже:
Расчёт ипотечного платежа
Стоимость квартиры: 2 871 000 ₽
Результаты расчёта:
Первоначальный взнос:
0 ₽
Сумма кредита:
0 ₽
Ежемесячный платёж:
0 ₽
Данный расчет предварительный и за более точной информацией необходимо обратиться в банк
Наши банки-партнеры
Отдел Продаж
(ООО «СЗ «Псковоблстрой»)
8 (8112) 60-60-70, +7-921-115-60-70, 8 (8112) 60-22-60, +7-931-905-21-46
sale@novostroypskov.ru






